Main image
€500,000

Ex Cantina da Ristrutturare

San Gimignano, Siena
Tipologia Proprietà - Proprietà
resize 410m²
resize 472m²
ST18300
Salva
love
Condividi
upload
Property
Property
Property
Property
Property
Property
Property
Property
Property
Property
Property
Property
Property
Property
Property
Property
Property
Property
Property
Property
Property
Property
Property

Dettagli Immobile

Ex Cantina da Ristrutturare - Montagnana, San Gimignano, Ex Cantina completamente da ristrutturare.
San Gimignano è un antico borgo medievale fortificato le cui mura risalgono all'anno Mille. È famosa per il suo patrimonio storico e artistico e la sua architettura, in particolare le sue torri. Nel 1990 è stata dichiarata Patrimonio dell'Umanità dall'Unesco.
La proprietà si trova sulla strada principale e gode di una bellissima vista sulla vallata circostante.
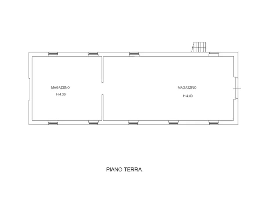
Sono 500 mq circa suddivisi in due livelli.
Gli ambienti si presentano come grandi open space collegati da una scala esterna.
Il piano superiore ha la coper

Dettagli Immobile

Ex Cantina da Ristrutturare - Montagnana, San Gimignano, Ex Cantina completamente da ristrutturare.
San Gimignano è un antico borgo medievale fortificato le cui mura risalgono all'anno Mille. È famosa per il suo patrimonio storico e artistico e la sua architettura, in particolare le sue torri. Nel 1990 è stata dichiarata Patrimonio dell'Umanità dall'Unesco.
La proprietà si trova sulla strada principale e gode di una bellissima vista sulla vallata circostante.
Sono 500 mq circa suddivisi in due livelli.
Gli ambienti si presentano come grandi open space collegati da una scala esterna.
Il piano superiore ha la copertura retta da bellissime capriate in legno.
La proprietà comprende un terreno di circa 6.000 mq in prevalenza ad uliveta.
E' possibile cambiare l'attuale destinazione urbanistica dell'immobile e pensare sullo stesso un progetto specifico, che oltre alla funzione residenziale, potrebbe prevedere quella ricettiva.
La posizione è preziosa, in prossimità di San Gimignano ma fuori dal centro.

Caratteristiche Immobile

Recintato

Richiedi informazioni su questa Proprietà

Contattaci oggi stesso per questa proprietà e uno del nostro team ti contatterà

Studio18's photo

Questo immobile è trattato da

Studio18

Immobili Simili

Immobili in Evidenza